オーダー家具で、思い通りの食器棚をつくる

今回は、食器棚を納品しました。こちらの戸建ては、食器棚はお手持ちの家具を置かれていました。今回使いやすく、そしてすっきり見えるように食器棚をつくりました。
扉の色や取っ手は、キッチンに合わせて色や素材を選んだので、まるでもとからついている食器棚のような仕上がりとなりました。写真でキッチンをもっと入れて撮れば良かったのですが、うっかりしていました。取っ手は、キッチンの黒い取っ手に合わせて、なるべく同じ雰囲気の商品をさがしまました。キッチンからは、以前納品させていただいた、ルイスポールセンのペンダント照明が見えて、とっても素敵でした。
食器棚は、よく見ていただくと、白色ではありません。もともと壁紙もグレージュでしたので、白ではなく、ほんのりベージュ色をえらんでいます。天板はキッチンに合わせて白なので、扉や棚の収納部分に色がついているのが分かるかと思います。ダイニング側の収納は扉をつけずに、お子様たちもすぐにパンや必要なものが取れるようにしています。

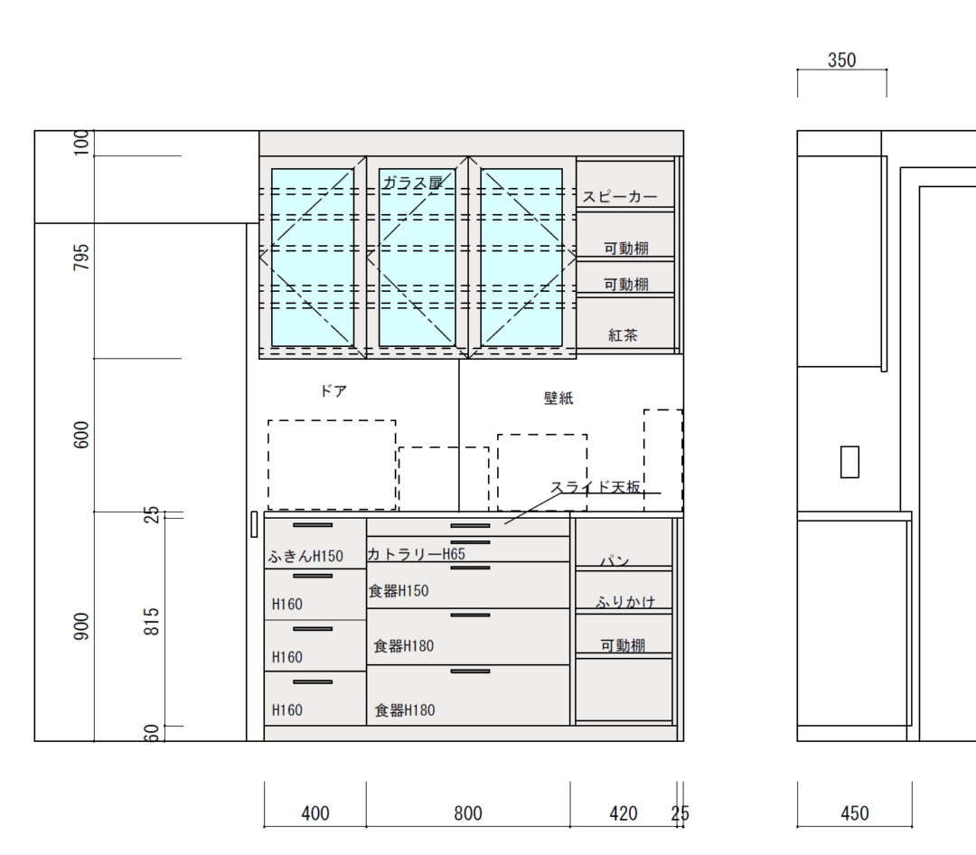
上の棚は、食器を重ねて置かなくてもいいように、棚板は多めにいれています。

食器が見えるようにガラスの扉にしています。

下の段は、引き出し収納です。一番上は、スライド天板なので、配膳のときに使えます。その下は、カトラリーや食品、食器が入るように高さを細かく調整してつくりました。ダイニング側の出入り口の枠がかなり厚みがあるので、それをよけて家具をつくりました。電子レンジや炊飯器などを置くことや、収納量を考えて、出入り口部分だけ奥行浅めにしています。

下の図は、最終の打ち合わせ図面です。お客様との打ち合わせの内容を、このように図面にして確認していただきます。図の点線で描いている部分は、家電が置かれるので、配膳のときにはスライド天板や活躍します。写真では分かりませんが、吊戸棚の下にはメラミン化粧板を貼っているので、家電の蒸気などで汚れたときも、掃除がしやすいようにしています。配線関係も配線穴をつくり、隠したり、すっきり見せることができるのが、オーダー家具の良いところです。

ダイニング入口部分だけ奥行を浅くする打ち合わせのときに、お客様がイメージがわかないということでしたので、3Dで立ち上げてみました。味気ない図ですが、なんとなくどのような形になるかイメージしていただけたのではないかと思います。



今回も無事納品が終わって、ほっとしています。
